
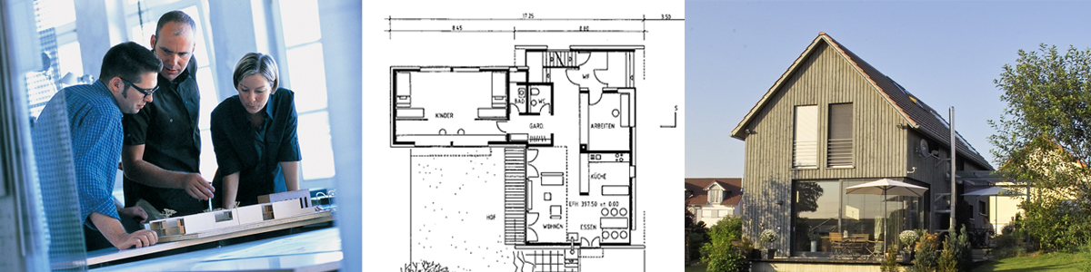
Vom Gespräch über den Plan bis zum fertigen Bau
Foto (l): Martin Baitinger, Böblingen; Architekt/Foto (r): herter + krauss freie architekten, Wangen im Allgäu
Ob Neu-, Um- oder Ausbau, ob Modernisierung oder Instandhaltung – dank ihrer umfassenden Ausbildung sind Architekten und Architektinnen in allen Bereichen kompetente Ansprechpartner. Bei der Gebäudeplanung berücksichtigen sie technische, wirtschaftliche und gestalterische, gesellschaftlich-soziale und ökologische Gesichtspunkte.

